September 2022 update:
Thank you to those who helped with the September walk around.
If you missed our walk around then there will be a STEM practical activity for children and parents at St Mary’s Church on Saturday 15th October from 9am until midday.
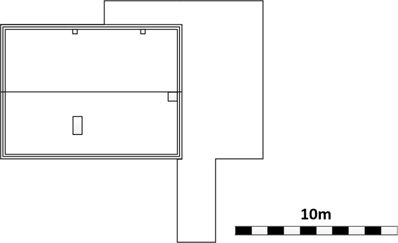
The Christ the King site has 2 buildings: the church and the presbytery.
Church
The church has a particularly unusual roof which may be difficult to cover aesthetically with solar panels. It principally has a North-facing side and a West-facing side. Both of these sides are shaded by the taller end section of roof towards the South-East. The rear of the building has two thin roof sections facing South and East and two lower roof sections facing South and East. There is one flue on the corner edge of the Southerly-facing thin roof section. The main roof sections could be affected by shading from the surrounding trees.
The main North-facing roof is unlikely to be economic to put panels on. The main West-facing roof is 1° South of West with a roof pitch angle of 15°. The maximum number of horizontally-placed panels is 55 and the maximum number of vertically-placed panels is 58. The panels would likely be shaded by the top roof until midday. Having panels only on one side may not look pleasing. The maximum number of panels is not aesthetic either and should the power be required then a smaller square block of panels may be preferable (say 35 in total).
The South-facing strip of roof behind the church has a pitch angle of 16° and might fit 6 panels horizontally although it is expected that some installers would not recommend this. The lower roof section under it (with a pitch angle of 14.5°) could fit 25 panels comfortably in a vertical arrangement (perhaps up to 32 horizontally-placed panels could be squeezed on).
The East-facing strip of roof behind the church has a pitch angle of 16° and might fit 5 panels horizontally although it is expected that some installers would not recommend this. The lower roof section under it (with a pitch angle of 14.5°) could fit 21 panels comfortably in a vertical arrangement (perhaps up to 24 horizontally-placed panels could be squeezed on).
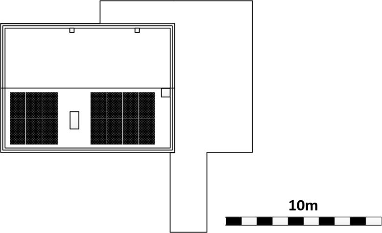
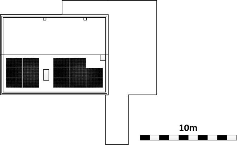
| Roof | Number of Panels | kWp (assume 300W panels) | kWh (unshaded)* |
|---|---|---|---|
| (Main North) | (58) | (17.4) | (10941) |
| Main West | 58 | 17.4 | 12573 |
| South Strip | 6 | 1.8 | 1562 |
| South Lower Section | 25 | 7.5 | 6452 |
| East Strip | 5 | 1.5 | 990 |
| East Lower Section | 21 | 6.3 | 4132 |
| Total | 115 | 34.5 | 25709 |
* Estimate from europa.eu and all have modified horizons to account for the shading from the church itself but do not include shading from surrounding trees
Note: unshaded annual energy per panel roughly shows which roof has the best investment return (189kWh/panel/year for Main North; 217kWh/panel/year for Main West; 260kWh/panel/year for South Strip; 258kWh/panel/year for South Lower Section; 198kWh/panel/year for East Strip; 197kWh/panel/year for East Lower Section). The large main West roof might be better than the East sections. The South sections are solid performers.
Presbytery
The presbytery has an almost flat roof which faces North-West and South-East. There are two chimneys on the roof as well as at least two vent pipes. There is a large lower section of flat roof but this is not suited for panels as this is mostly in the shadow to the North of the house. The main roof is particularly difficult to assess from the road due to the nearly flat roof which is recessed from the exterior brickwork. There are trees around the presbytery which could contribute to shading.
The South-East facing roof is oriented 49° East of South. Estimates of the pitch of the roof from the exterior brickwork are around 5.5° (so say 5°). The central chimney in the South-East roof mean panels must be arranged around that taking into consideration shading from it. It should be possible to fit 14 panels on the South-East roof.
| Roof | Number of Panels | kWp (assume 300W panels) | kWh (unshaded)* |
|---|---|---|---|
| South-East | 14 | 4.2 | 3504 |
| (North-West) | (18) | (5.4) | (4210) |
| Total | 14 | 4.2 | 3504 |
* Estimate from europa.eu. Shading not included,
Note: unshaded annual energy per panel roughly shows which roof has the best investment return (250kWh/panel/year for South-East; 234kWh/panel/year for North-West). Due to the flat nature of the roof, the North-West side actually is a fairly good option. There may be options to angle the panels away from the roof pitch given that the roof is hidden from the road. The amount by which the panels could be angled has not been determined, but angling the panels towards the South East may reduce the total number of panels but give a better investment return for the setup and should be considered as an option in the next stage.
Note about chimneys: not only are chimneys problematic for shading, but they can also lead to panel soiling issues as they can be a preferred perch for birds. It is good to examine the roof and avoid areas of soiling such as under chimneys and especially under antennas.
Project Background:
We are looking into the feasibility of solar panels at Christ the King. As part of this we will start with a practical walk around at 12:30 on Saturday 3rd September. This is a STEM (Science, Technology, Engineering and Mathematics) activity which may be of interest to children and parents as well as parishioners keen to help with this exciting project! We will try and measure building dimensions, roof angles and orientation (if you happen to have a long tape measure or large protractor or a North locating compass then please bring them along – if not then don’t worry as we will have some we can share). We will talk about the solar angles from the position of the sun in the sky, consider what happens in different seasons and look at shading. This event is a local event during the Season of Creation. Look at some of the global events too here.
Can’t make the day? Get in contact using our contact form with your availability and we will try and organize a repeat in September or early October.
Keep an eye on this page for project updates!
If you are keen you are very welcome to start preparing…
Look at Google Maps to understand the position of the church buildings
Make a sketch of the buildings noting North and ready to write down the measurements on the day:

Many thanks.






